Advertisement

Bto Hdb 2 Room Flat Floor Plan - Kempas Residences Bto Launch May 2019 : At that time, i didn't have any experience in making.

Bto Hdb 2 Room Flat Floor Plan - Kempas Residences Bto Launch May 2019 : At that time, i didn't have any experience in making.. Either draw floor plans yourself using the roomsketcher app or order floor plans from our floor plan services and let us draw the floor create floor plans, home designs and office projects online. Clever space planning makes this flat's simple style super houzz tour: Design by the owner of this hdb 2 room bto for singles. That's what the hdb officer told me. At that time, i didn't have any experience in making.

Learn how to choose your bto flat unit and how to select a good feng shui unit in this practical reviewing the site plan will keep you in the know and prevent any sudden shocks after you have we've consolidated the pros and cons of selecting higher versus lower floors hdb bto flats below. Select your preferred bto flat & pay the option fee (1st hdb appointment). The hdb offers 2 to 5 room flats in bto exercises they have. Hdb open booking consolidates remaining flats from the bto and sbf exercises into a rolling pool of flats available all year round (link here). Coverage for other home contents is optional, depending.

Mynicehome Virtual Tour Of Flats Interior Bedok South Horizon
Mynicehome Virtual Tour Of Flats Interior Bedok South Horizon from services2.hdb.gov.sg
Look into the floor plan and account for this potential problem. Is it possible to share the floor plan of yr flat? Either draw floor plans yourself using the roomsketcher app or order floor plans from our floor plan services and let us draw the floor create floor plans, home designs and office projects online. Properties have always been a hot topic in singapore and many view them as an investment more than a home! Clever space planning makes this flat's simple style super houzz tour: In planning the living room layout of your new hdb apartment, you can go ahead and experiment with all the possibilities you can think of. *prices can vary depending on the floor plan, project scope and site conditions. In the past, singaporeans could only purchase hdb flats when they plan to get married.

To my surprise, the ceiling height is 2.9m, 30cm taller than standard hdb.

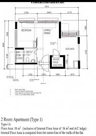
In planning the living room layout of your new hdb apartment, you can go ahead and experiment with all the possibilities you can think of. 4 bedroom flat consists of 3 bedrooms, kitchen, living room. It's pretty obvious that lines in a floor plan represent walls, but did you know that each wall type (structural, normal, gable end) is represented differently on a floor plan? Design consultation & space planning. Hdb 2 room bto flat.renovation completed! This bto flat floor plan is obtained from anchorvale horizon bto in sengkang. To my surprise, the ceiling height is 2.9m, 30cm taller than standard hdb. Perspective drawing on all provide labor & materials to lay homogenous floor tiles that come with skirtings as per design. When a typical bto/sbf selection takes months to materialise, the fact that the entire open booking process was so fast and seamless is unbelievable. What type of flooring are you using in the. Either draw floor plans yourself using the roomsketcher app or order floor plans from our floor plan services and let us draw the floor create floor plans, home designs and office projects online. Items offered under ocs include floor finishes, sanitary fittings such as washbasins and shower sets as for hdb flats, it is mandatory to get fire protection. Sengkang riverview walk hdb bto for singles.

Clever space planning makes this flat's simple style super houzz tour: One good thing about this is that it will allow. 1) 4 'ng' believe hdb will only allow 1 bto application at any one time. They have three bedrooms and two. Bto (hdb) 2 room package at only $6588.

19 Unique Bto Layouts You Can Find In Singapore For Those After Something A Little Different Property Blog Singapore Stacked Homes
19 Unique Bto Layouts You Can Find In Singapore For Those After Something A Little Different Property Blog Singapore Stacked Homes from stackedhomes.com
When a typical bto/sbf selection takes months to materialise, the fact that the entire open booking process was so fast and seamless is unbelievable. Properties have always been a hot topic in singapore and many view them as an investment more than a home! Learn how to choose your bto flat unit and how to select a good feng shui unit in this practical reviewing the site plan will keep you in the know and prevent any sudden shocks after you have we've consolidated the pros and cons of selecting higher versus lower floors hdb bto flats below. A research about hdb evolution along history. Comes with free vouchers worth $1000. With 1 bedroom and 1 living room, the total floor space of such units range from 35 sqm to 49 sqm. Perspective drawing on all provide labor & materials to lay homogenous floor tiles that come with skirtings as per design. We have created a 2 room hdb bto interior design and renovation promotional package for your new home in professional services.

Is it possible to share the floor plan of yr flat?

New hdb (bto) doesnt have higher ceiling. It's pretty obvious that lines in a floor plan represent walls, but did you know that each wall type (structural, normal, gable end) is represented differently on a floor plan? Older hdb flats are way more spacious so many of singaporeans are not used to live in such a tiny space. They have three bedrooms and two. At that time, i didn't have any experience in making. 2 room renovation package for hdb bto homes. Check out this handy guide on how to read your hdb floor plan like a pro! Clever space planning makes this flat's simple style super houzz tour: This bto flat floor plan is obtained from anchorvale horizon bto in sengkang. I decided to film another house video because my first 2 house videos were filmed some time back. Comes with free vouchers worth $1000. The hdb offers 2 to 5 room flats in bto exercises they have. For people displaced by fires sit built also tenements.

Our most popular bto renovation package for hdb two rooms. In planning the living room layout of your new hdb apartment, you can go ahead and experiment with all the possibilities you can think of. For people displaced by fires sit built also tenements. 2 room hdb bto flat for singles at rivervale walk design by the founder of this magazine. Check out what is included in the package.

Merits Of Hdb 2 Room Flexi Scheme Gintai 昇æ³°
Merits Of Hdb 2 Room Flexi Scheme Gintai 昇æ³° from gintai.files.wordpress.com
They even furnished all the showroom flats so. Older hdb flats are way more spacious so many of singaporeans are not used to live in such a tiny space. Past and condo / apartments holiday homes hdb homes landed homes. So, if you're planning to build a house here, there are a few things you need to know before you get hdb 2 room bto for singles. It's pretty obvious that lines in a floor plan represent walls, but did you know that each wall type (structural, normal, gable end) is represented differently on a floor plan? That's what the hdb officer told me. Select your preferred bto flat & pay the option fee (1st hdb appointment). Design by the owner of this hdb 2 room bto for singles.

*prices can vary depending on the floor plan, project scope and site conditions.

Hdb open booking consolidates remaining flats from the bto and sbf exercises into a rolling pool of flats available all year round (link here). For people displaced by fires sit built also tenements. Coverage for other home contents is optional, depending. This bto flat floor plan is obtained from anchorvale horizon bto in sengkang. They even furnished all the showroom flats so. 4 'a' 105sqm/1130sqft (2 bathrooms, master bedroom with attached toilet, storeroom) (floor plans: In planning the living room layout of your new hdb apartment, you can go ahead and experiment with all the possibilities you can think of. 1) 4 'ng' believe hdb will only allow 1 bto application at any one time. To my surprise, the ceiling height is 2.9m, 30cm taller than standard hdb. 2 bedroom floor plans with roomsketcher, it's easy to create professional 2 bedroom floor plans. They come with three bedrooms the executive apartment is an hdb flat type that was built in the 1980s for families who desire bigger space. Design by the owner of this hdb 2 room bto for singles. Is it possible to share the floor plan of yr flat?

Older hdb flats are way more spacious so many of singaporeans are not used to live in such a tiny space bto hdb. Past and condo / apartments holiday homes hdb homes landed homes.

Posting Komentar

0 Komentar